Fotos do Imóvel - CÓD. CAS00189 - Casa - Casa de Condomínio - Térrea em Winter Garden FL - Florida EUA

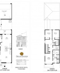
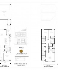
Planta do Imóvel

- Planta e Acompanhamento da Obra

🌟 Conheça o Hamlin Ridge 🌟

Localização: Winter Garden, FL, EUA Imóvel: Hamlin Ridge Metragem: 152 a 160 metros quadrados Preço: A partir de 468.490 USD (aproximadamente R$ 2.839.958) Quartos: 3 a 4 Banheiros: 2 a 3

Descrição:

Descubra o Hamlin Ridge, a mais nova comunidade em Winter Garden, onde o design moderno encontra o conforto e a praticidade. Com uma variedade de plantas pré-definidas, esta comunidade é perfeita para aqueles que buscam um estilo de vida tranquilo e conveniente na Flórida Central.

Benefícios para Investidores e Moradores:

Amenidades e Comodidades:

Sobre Winter Garden:

Parques de Orlando:

Observação:

A conversão de USD 468.490 para Reais pode variar dependendo da taxa de câmbio atual. A estimativa de R$ 2.839.958 é baseada na taxa de câmbio de 1 USD = 6,06 BRL.

Contato:

Nelson C Sena CRECI 110.554-F Fone: (11) 9.9914-6247 (Whatsapp) Email: nelsoncsena1@hotmail.com

#HamlinRidge #WinterGardenImoveis #InvestimentoNosEUA #VidaDeLuxo #ImovelDeAltoPadrao #CompradeImoveis #ResidencialDeLuxo #FloridaLiving #MagicKingdom #Epcot #HollywoodStudios #AnimalKingdom #UniversalStudios #IslandsOfAdventure #SeaWorld #LEGOLAND

Características do Imóvel

Tipo de transação e Valores

Transação: Venda
Preço de Venda: R$ 2.839.958,00
Temporada/Diária: R$ 0,00
Preço de Locação: R$ 0,00
Valor do Condomínio: R$ 0,00
Valor do IPTU: R$ 0,00

Vídeo do Imóvel

 

Preencha nosso formulário e receba por e-mail, CONDIÇÕES DE PAGAMENTO.

Selecionamos alguns imóveis para você

Casa em Florida EUA
Bairro: Apopka FL EUA - Dormitórios: 4 - Vagas de garagem: 2 - WC: 3 Ver detalhes deste imóvel
Casa em Florida EUA
Bairro: Winter Garden FL - Dormitórios: 5 - Vagas de garagem: 2 - WC: 2 Ver detalhes deste imóvel
Casa em Florida EUA
Bairro: Dr. Phillips FL EUA - Dormitórios: 4 - Vagas de garagem: 2 - WC: 2 Ver detalhes deste imóvel
Casa em Florida EUA
Bairro: Clermont FL - Dormitórios: 4 - Vagas de garagem: 2 - WC: 2 Ver detalhes deste imóvel
Casa em Florida EUA
Bairro: Apopka FL EUA - Dormitórios: 3 - Vagas de garagem: 2 - WC: 2 Ver detalhes deste imóvel
Casa em Florida EUA
Bairro: Montverde FL - Dormitórios: 3 - Vagas de garagem: 2 - WC: 2 Ver detalhes deste imóvel
Casa em Florida EUA
Bairro: Kissimmee FL - Dormitórios: 6 - Vagas de garagem: 4 - WC: 3 Ver detalhes deste imóvel
Casa em Florida EUA
Bairro: Apopka FL EUA - Dormitórios: 3 - Vagas de garagem: 2 - WC: 2 Ver detalhes deste imóvel
Casa em Florida EUA
Bairro: St Cloud. FL - Dormitórios: 5 - Vagas de garagem: 4 - WC: 3 Ver detalhes deste imóvel
Casa em Florida EUA
Bairro: Kissimmee FL - Dormitórios: 4 - Vagas de garagem: 4 - WC: 3 Ver detalhes deste imóvel
Casa em Florida EUA
Bairro: Kissimmee FL - Dormitórios: 5 - Vagas de garagem: 4 - WC: 3 Ver detalhes deste imóvel
Casa em Florida EUA
Bairro: Kissimmee FL - Dormitórios: 6 - Vagas de garagem: 4 - WC: 3 Ver detalhes deste imóvel
Casa em Florida EUA
Bairro: Kissimmee FL - Dormitórios: 6 - Vagas de garagem: 4 - WC: 3 Ver detalhes deste imóvel
Casa em Florida EUA
Bairro: Wesley Chapel FL EUA - Dormitórios: 7 - Vagas de garagem: 4 - WC: 5 Ver detalhes deste imóvel
Casa em Florida EUA
Bairro: ChampionsGate - Dormitórios: 9 - Vagas de garagem: 4 - WC: 6 Ver detalhes deste imóvel
Casa em Florida EUA
Bairro: Apopka FL EUA - Dormitórios: 6 - Vagas de garagem: 4 - WC: 3 Ver detalhes deste imóvel
Casa em Florida EUA
Bairro: Lake Nona FL - Dormitórios: 5 - Vagas de garagem: 4 - WC: 3 Ver detalhes deste imóvel
Casa em Florida EUA
Bairro: St Cloud. FL - Dormitórios: 5 - Vagas de garagem: 4 - WC: 3 Ver detalhes deste imóvel
Casa em Florida EUA
Bairro: Lake Nona FL - Dormitórios: 6 - Vagas de garagem: 4 - WC: 4 Ver detalhes deste imóvel
Casa em Florida EUA
Bairro: Ocoee FL - Dormitórios: 5 - Vagas de garagem: 4 - WC: 3 Ver detalhes deste imóvel
Casa em Florida EUA
Bairro: Davenport FL EUA - Dormitórios: 10 - Vagas de garagem: 4 - WC: 6 Ver detalhes deste imóvel
Casa em Florida EUA
Bairro: Kissimmee FL - Dormitórios: 5 - Vagas de garagem: 4 - WC: 2 Ver detalhes deste imóvel
Casa em Florida EUA
Bairro: Minneola FL - Dormitórios: 5 - Vagas de garagem: 4 - WC: 3 Ver detalhes deste imóvel
Casa em Florida EUA
Bairro: Kissimmee FL - Dormitórios: 4 - Vagas de garagem: 4 - WC: 2 Ver detalhes deste imóvel
Casa em Florida EUA
Bairro: Davenport FL EUA - Dormitórios: 4 - Vagas de garagem: 4 - WC: 3 Ver detalhes deste imóvel
Casa em Florida EUA
Bairro: Winter Haven - Dormitórios: 4 - Vagas de garagem: 4 - WC: 3 Ver detalhes deste imóvel
Casa em Florida EUA
Bairro: Davenport FL EUA - Dormitórios: 4 - Vagas de garagem: 4 - WC: 2 Ver detalhes deste imóvel
Casa em Florida EUA
Bairro: Kissimmee FL - Dormitórios: 4 - Vagas de garagem: 4 - WC: 2 Ver detalhes deste imóvel
Casa em Florida EUA
Bairro: Davenport FL EUA - Dormitórios: 4 - Vagas de garagem: 4 - WC: 2 Ver detalhes deste imóvel
Casa em Florida EUA
Bairro: Orlando FL - Dormitórios: 5 - Vagas de garagem: 4 - WC: 3 Ver detalhes deste imóvel
Casa em Florida EUA
Bairro: Oviedo - Dormitórios: 5 - Vagas de garagem: 1 - WC: 3 Ver detalhes deste imóvel