Fotos do Imóvel - CÓD. CAS00219 - Casa - Casa de Condomínio - Padrão em Kissimmee FL - Florida EUA

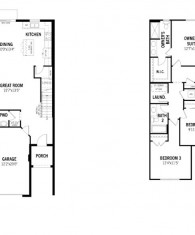
Planta do Imóvel

- Planta e Acompanhamento da Obra

🏡 Single Family Homes e Townhomes: Soleil 🏡 Soleil, desenvolvido para o jeito que você vive!

Localização: Kissimmee, FL, EUA Imóvel: Soleil Tamanho: 137 - 240 m² Preço: A partir de US 330.990,00 (aproximadamente R$ 1.711.000,00 - valor sujeito a alteração conforme a cotação do dólar do dia) Quartos: 3 - 5 Banheiros: 2 - 3

Sobre o Soleil

Soleil coloca você no meio da magia de Orlando, perto de parques temáticos mundialmente famosos e de entretenimento ininterrupto, recreação, compras e gastronomia.

Projetos de casas residenciais pensadas, que variam de residências urbanas a residências unifamiliares e apresentam de 3 a 5 quartos, 2 a 3 banheiros e garagens de 1 a 2 carros.

Um condomínio fechado, para privacidade e segurança de seus moradores, que oferece 214 casas no total. São 8 tipos de plantas que estão ao seu alcance, possibilitando ao comprador grande poder de escolha.

Diferenciais e Facilidades

Confira alguns diferenciais que o Soleil oferece de facilities aos proprietários, hóspedes e condôminos:

Sobre Kissimmee

Kissimmee é uma cidade vibrante e acolhedora, situada perto de Orlando, conhecida por sua proximidade com as principais atrações turísticas da Flórida. É um lugar ideal para viver, oferecendo uma combinação perfeita de tranquilidade residencial e acesso fácil a entretenimento de classe mundial.

Parques de Orlando

Walt Disney World:

Universal Studios:

Contato por WhatsApp

Entre em contato conosco hoje para mais informações e para agendar uma visita! 📞 Nelson C Sena: CRECI 110.554-F 📱 Telefone: (11) 9.9914-6247 (WhatsApp) 📧 Email: nelsoncsena1@hotmail.com

Hashtags

#Soleil #Kissimmee #FloridaRealEstate #ImóveisDeLuxo #CondomínioFechado #VidaDeSonho #Piscina #Academia #CampoDeGolf #SplashPad #QuadraDeVôleiDePraia #WaltDisneyWorld #UniversalStudios #OrlandoFL

Características do Imóvel

Tipo de transação e Valores

Transação: Venda
Preço de Venda: R$ 1.711.000,00
Temporada/Diária: R$ 0,00
Preço de Locação: R$ 0,00
Valor do Condomínio: R$ 0,00
Valor do IPTU: R$ 0,00

Vídeo do Imóvel

 

Preencha nosso formulário e receba por e-mail, CONDIÇÕES DE PAGAMENTO.

Selecionamos alguns imóveis para você

Casa em Florida EUA
Bairro: Apopka FL EUA - Dormitórios: 4 - Vagas de garagem: 2 - WC: 3 Ver detalhes deste imóvel
Casa em Florida EUA
Bairro: Winter Garden FL - Dormitórios: 5 - Vagas de garagem: 2 - WC: 2 Ver detalhes deste imóvel
Casa em Florida EUA
Bairro: Dr. Phillips FL EUA - Dormitórios: 4 - Vagas de garagem: 2 - WC: 2 Ver detalhes deste imóvel
Casa em Florida EUA
Bairro: Winter Garden FL - Dormitórios: 4 - Vagas de garagem: 2 - WC: 2 Ver detalhes deste imóvel
Casa em Florida EUA
Bairro: Clermont FL - Dormitórios: 4 - Vagas de garagem: 2 - WC: 2 Ver detalhes deste imóvel
Casa em Florida EUA
Bairro: Apopka FL EUA - Dormitórios: 3 - Vagas de garagem: 2 - WC: 2 Ver detalhes deste imóvel
Casa em Florida EUA
Bairro: Montverde FL - Dormitórios: 3 - Vagas de garagem: 2 - WC: 2 Ver detalhes deste imóvel
Casa em Florida EUA
Bairro: Kissimmee FL - Dormitórios: 6 - Vagas de garagem: 4 - WC: 3 Ver detalhes deste imóvel
Casa em Florida EUA
Bairro: Apopka FL EUA - Dormitórios: 3 - Vagas de garagem: 2 - WC: 2 Ver detalhes deste imóvel
Casa em Florida EUA
Bairro: St Cloud. FL - Dormitórios: 5 - Vagas de garagem: 4 - WC: 3 Ver detalhes deste imóvel
Casa em Florida EUA
Bairro: Kissimmee FL - Dormitórios: 4 - Vagas de garagem: 4 - WC: 3 Ver detalhes deste imóvel
Casa em Florida EUA
Bairro: Kissimmee FL - Dormitórios: 5 - Vagas de garagem: 4 - WC: 3 Ver detalhes deste imóvel
Casa em Florida EUA
Bairro: Kissimmee FL - Dormitórios: 6 - Vagas de garagem: 4 - WC: 3 Ver detalhes deste imóvel
Casa em Florida EUA
Bairro: Kissimmee FL - Dormitórios: 6 - Vagas de garagem: 4 - WC: 3 Ver detalhes deste imóvel
Casa em Florida EUA
Bairro: Wesley Chapel FL EUA - Dormitórios: 7 - Vagas de garagem: 4 - WC: 5 Ver detalhes deste imóvel
Casa em Florida EUA
Bairro: ChampionsGate - Dormitórios: 9 - Vagas de garagem: 4 - WC: 6 Ver detalhes deste imóvel
Casa em Florida EUA
Bairro: Apopka FL EUA - Dormitórios: 6 - Vagas de garagem: 4 - WC: 3 Ver detalhes deste imóvel
Casa em Florida EUA
Bairro: Lake Nona FL - Dormitórios: 5 - Vagas de garagem: 4 - WC: 3 Ver detalhes deste imóvel
Casa em Florida EUA
Bairro: St Cloud. FL - Dormitórios: 5 - Vagas de garagem: 4 - WC: 3 Ver detalhes deste imóvel
Casa em Florida EUA
Bairro: Lake Nona FL - Dormitórios: 6 - Vagas de garagem: 4 - WC: 4 Ver detalhes deste imóvel
Casa em Florida EUA
Bairro: Ocoee FL - Dormitórios: 5 - Vagas de garagem: 4 - WC: 3 Ver detalhes deste imóvel
Casa em Florida EUA
Bairro: Davenport FL EUA - Dormitórios: 10 - Vagas de garagem: 4 - WC: 6 Ver detalhes deste imóvel
Casa em Florida EUA
Bairro: Kissimmee FL - Dormitórios: 5 - Vagas de garagem: 4 - WC: 2 Ver detalhes deste imóvel
Casa em Florida EUA
Bairro: Minneola FL - Dormitórios: 5 - Vagas de garagem: 4 - WC: 3 Ver detalhes deste imóvel
Casa em Florida EUA
Bairro: Kissimmee FL - Dormitórios: 4 - Vagas de garagem: 4 - WC: 2 Ver detalhes deste imóvel
Casa em Florida EUA
Bairro: Davenport FL EUA - Dormitórios: 4 - Vagas de garagem: 4 - WC: 3 Ver detalhes deste imóvel
Casa em Florida EUA
Bairro: Winter Haven - Dormitórios: 4 - Vagas de garagem: 4 - WC: 3 Ver detalhes deste imóvel
Casa em Florida EUA
Bairro: Davenport FL EUA - Dormitórios: 4 - Vagas de garagem: 4 - WC: 2 Ver detalhes deste imóvel
Casa em Florida EUA
Bairro: Davenport FL EUA - Dormitórios: 4 - Vagas de garagem: 4 - WC: 2 Ver detalhes deste imóvel
Casa em Florida EUA
Bairro: Orlando FL - Dormitórios: 5 - Vagas de garagem: 4 - WC: 3 Ver detalhes deste imóvel
Casa em Florida EUA
Bairro: Oviedo - Dormitórios: 5 - Vagas de garagem: 1 - WC: 3 Ver detalhes deste imóvel